Description
Modern House Plans 6.5×7.5m 21x25f 2 Beds
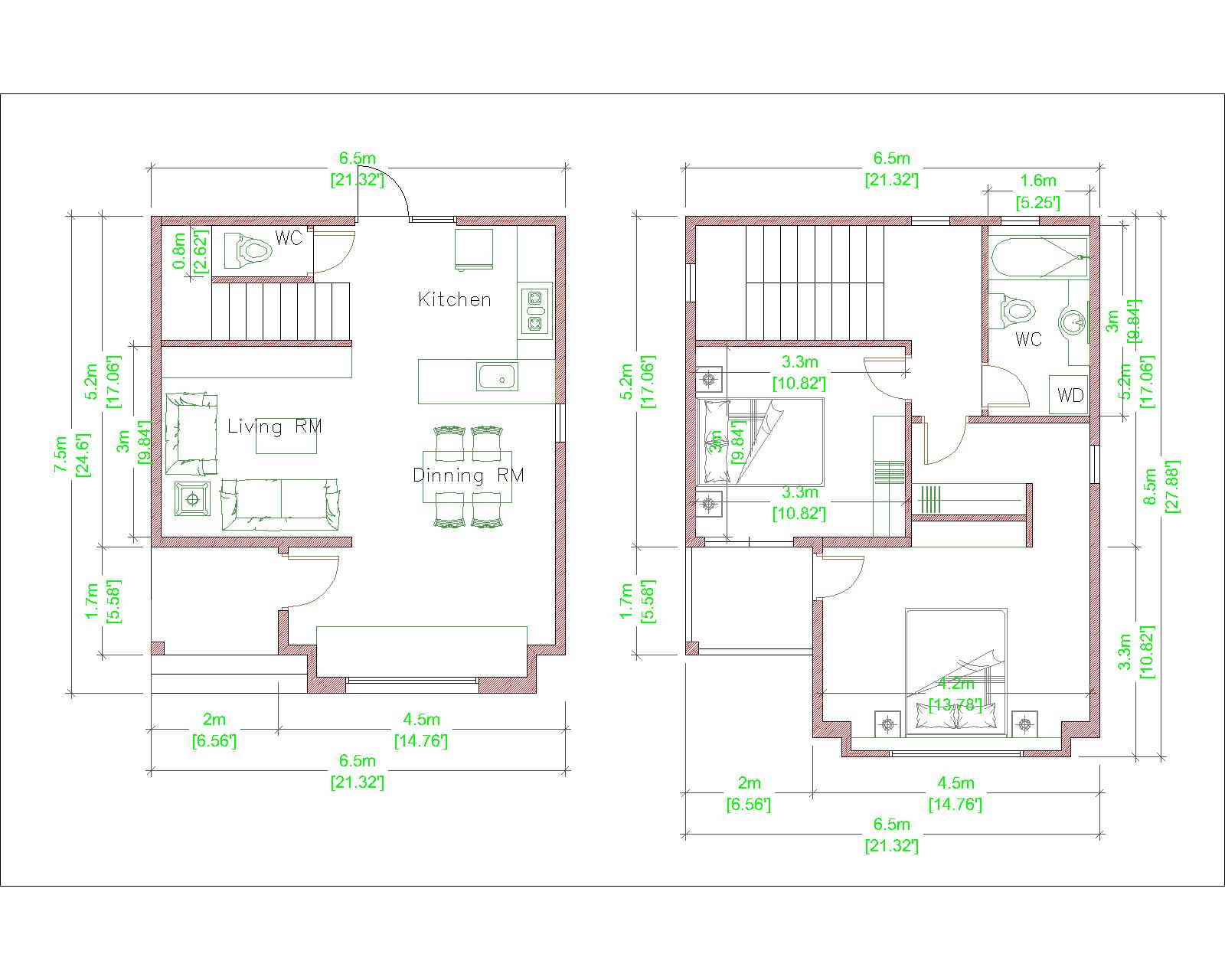
Introduction to a Simple Design House with 6.5 meter wide and 7.5 meters long. It has 2 bedrooms with full completed function in the house. You will Modern House Plans 6.5×7.5m 21x25f 2 Beds.
Modern House Plans 6.5×7.5m 21x25f 2 Beds floor plan Detail:
The Roof Tile:
Finally, The Terrace roof type is made from Concrete (or your local roof tiles) that cover above Gypsum board ceiling . It make the house look clean and modern.
Exterior Modern House Plans 6.5×7.5m 21x25f 2 Beds:
Similarly, to the roof border color we choose a bite dark and light color combination together with a big glass door and window to get the house look so beautiful and Modern house.
House Short Description:
Ground floor layout plan:
-Car Parking and garden
-Living room,
-Dining room
-Kitchen
-Guest Bathroom
-Storage under the stair
-washing room
First floor layout plan:
-Master bedroom
-1 Bedroom with one bathroom
-Balcony
PLEASE MAKE SURE YOU HAVE CHECK the free sample plans
Check the Plans for more detail:
Buy this house plan:
-Layout Detailing floor plan, Elevation Plan with dimension.
-Sketchup file can used in Meter and Feet
-Autocad file (All Layout plan)
* Included files Autocad 2010 and Sketchup 2017
Your could Reach Us: Personal FB:Â Sophoat Toch
Facebook Page: Sam Architect
Facebook Group:Â Home Design Idea
More Plans Download On Youtube:Â House Plans Channel
If you think this Plan is useful for you. Please like and share.
Read More:
Buy More House plans:
New House Design 12×14 Meter 40×46 Feet
Best Small House Designs 9×6 Meter 30×20 Feet
Small Cottage Designs 9×6 Meter 30×20 Feet
Small Home Floor Plans 9×6 Meter 30×20 Feet
Small Farmhouse Plans 9×6 Meter 30×20 Feet
Modern Small House Design 7×7 Meter 23×23 Feet
Small Cabin Plans 7×7 Meter 23×23 Feet
Small House Plans 23×23 Feet 7×7 Meter
Small House Design 7×7 Meter 23×23 Feet One Bed
House Plan Drawing 6×10 Meters 20×33 Feet 2 Beds
Interior House design










Reviews
There are no reviews yet.